Thu Duc Villa

Thủ Đức Garden Homes được biết đến là một dự án khu biệt thự ven sông rộng lớn và duy nhất có mặt tại quận Thủ Đức. Với sân vườn rộng rãi; cây xanh bao phủ toàn bộ dự án. bầu không khí trong lành và thoáng mát năm cạnh ven sông Sài Gòn. Chủ đầu tư đã tính toán và xây dựng những khoảng xanh đan xen mang lại luồn không khí trong lành cho cư dân tại đây. Bên cạnh đó, bên trong khuân viên của mỗi căn biệt thự đều có sân vườn. Điều này càng làm cho dự án thu hút và nổi bật hơn nhiều dự án thuộc cùng phân khúc khác.

01-C 

Công trình Thu Duc Villa được xây dựng 200 m2, 2  tầng cao . Quy mô 2 phòng ngủ, phòng khách, phòng bếp ăn, sân vườn 

Công trình sử dụng những vật liệu cao cấp để đảm bảo sự bền vững và thẩm mỹ dài lâu. Bảng màu trung tính với gam trắng chủ đạo, kết hợp với kim loại màu mạ vàng tạo nên sự sang trọng, kính và cây xanh tạo nên một tổng thể hài hòa và thanh lịch.

01-A 

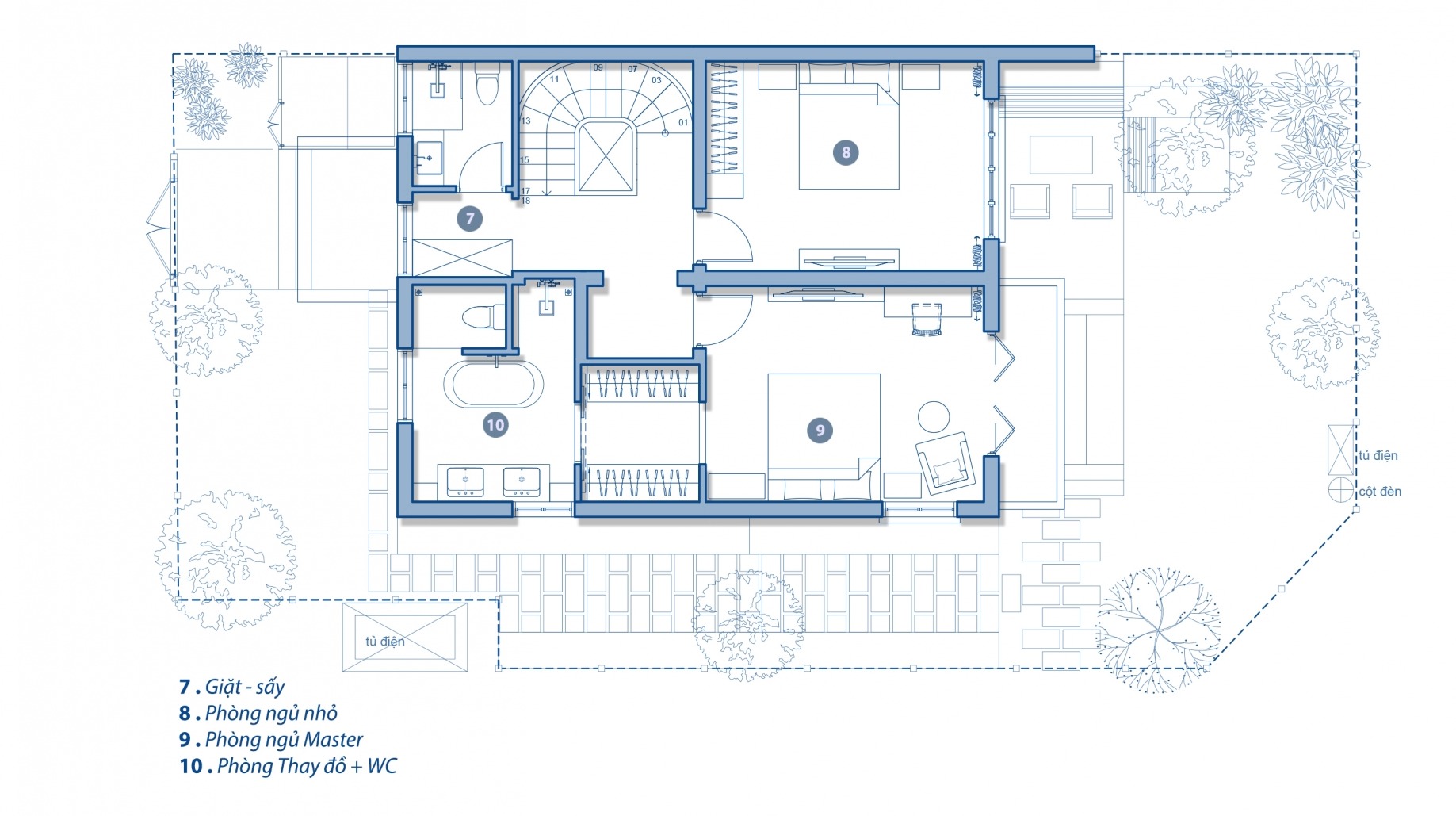
Tầng trệt là khu vực sinh hoạt chính, gồm không gian làm việc, bếp, phòng ăn và phòng sinh hoạt chung. Những không gian này được thiết kế không có tường ngăn, cho phép luồng không khí lưu thông không bị cản trở và tạo cảm giác cởi mở và kết nối. Trong khi đó, phòng ngủ được đặt trên tầng hai. Một khoảng trống lớn được kết hợp vào thiết kế để cải thiện khả năng thông gió hơn nữa. Khoảng trống này tạo điều kiện cho luồng không khí di chuyển 

01-E 

với hệ tủ bếp cao chạm trần rộng rãi đáp ứng đủ yêu cầu lưu trữ thực phẩm cho gia chủ, khu bếp nấu được trang bị các thiết bị bếp tiên tién cả về chức năng và hình thức mẫu mã hài hòa với không gian, với tủ rượu được sử dụng kính mờ vân sọc tạo nên sự sang trọng kết hợp với hệ đèn chiếu trần và đèn led tủ tạo cho căn bếp trông rộng rãi và sáng sủa,cùng với đó là bàn băn được gắn tính hợp vào với đảo bếp tạo nên sự thuận lợi trong việc sử dụng và vệ sinh , 

01-F 

01-G 

 Việc bố trí phòng ngủ ở tầng trên cũng mang lại cảm giác riêng tư và yên tĩnh, tách biệt khỏi các không gian chung bên dưới. Ngoài ra, các phòng ngủ ở tầng này được thiết kế với các ô cửa mở ra tầm nhìn ra các khu vực xanh, cho phép cư dân tận hưởng vẻ đẹp tươi tốt và tự nhiên xung quanh biệt thự.
với sân vườn chúng tôi bố trí cây dọc theo các hàng đa đi hơn thế nữa sân vườn vườn còn có  con rạnh nước trồng hoa súng  phù hợp với sở thích của gia chủ 

02-E 

02-A 

Tọa lạc tại khu vực, chủ nhà mong muốn có một ngôi nhà thứ hai trong thành phố để duy trì mối liên hệ với bạn bè, gia đình và sự thư dãn cùng các tiện nghi của cuộc sống đô thị. Một công trình mới được thiết kế riêng cho những kỳ nghỉ ngắn ngày Bảng màu phong phú cân bằng giữa sáng và tối, kết cấu và sự tinh tế, tạo nên sự gần gũi và cảm giác thoát ly với những khoảnh khắc màu sắc sống động. Nhiều loại đá, lớp hoàn thiện bằng kim loại, thạch cao, da, kính và gỗ mang đến sự ấm áp và thoải 

03-A 

03-C 

z5129129701058_b058c7aa6945014961570977066db83b 

trong không gian phòng ngủ gia chủ được chúng tôi thiết kế thêm vào đó là phòng thay đồ trước lối vào của phòng WC với 2 hệ tủ đồ 2 bên sử dụng cho việc lưu giữ quần áo và đồ dùng cá nhân

không gian wc được thiết kế với 2 Bồn rửa cùng với đó là chậu tăm, tắm đúng và bồn vệ sinh, trên tường được ốp đá vân mây, và gạch Moisac màu xanh làm điêmr nhấn cho không gian

04-BV 

04-A 

Là một địa điểm nhỏ gọn, ánh sáng trên cao được sử dụng cho cả sự riêng tư và kịch tính, lấp đầy không gian vui tươi bằng những luồng ánh sáng trong suốt cả ngày. Ánh sáng nhân tạo khuếch đại kết cấu và chi tiết, và tạo ra các màn chắn kim loại, tạo ra các lớp không gian và chiều sâu trong suốt. Với sự thoải mái và tiện nghi, Thu Duc Garden home được thiết kế để hiểu được nhu cầu của chủ sở hữu và nâng tầm nơi ở trong thành phố của họ với cảm giác sang trọng.

05-C 

05-D 

1b 

2b